Welcome! Phase-by-phase photos
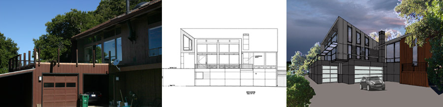
We've been thinking about this project since we bought the house in 1995. The basic idea: knock down the flat-roof 2-car garage and replace it with a 3-car garage, with a great room above, and a stair entry from the garage level to the main level. As well, we wanted to do some structural/earthquake retrofits at the same time. In the late 90's, we worked briefly with a home designer, with no luck. We got serious in early 2005 and hired Fuse Architects of Capitola to design our dream remodel. As we neared finalizing the design in December, 2006, we expanded the project scope to remodel the master suite. Swapping the locations of the bathroom and bedroom, and expanding the bedroom out over the back deck, would take better advantage of the space and the view. We hired a general contractor, and construction started June 18, 2007. How long will it take? Two weeks, of course! We expect to be closed in to the elements by October, and completion should be sometime in early February, 2008. (Note - 1/30/2008 - not likely! Still not closed in, and done? Try June!) (Maybe September?)

Find out more by following the links on the right to view the various phases of design and construction.

We recommend using Firefox to get the most out of this site.