Previous                     Index                        Next
Design/Prep    
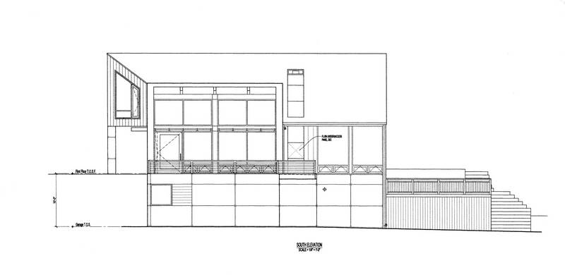
South elevation. Here you can see the "tree house" extension for the upstairs bedroom overhanging the rear deck.
South elevation. Here you can see the...